


General Land Development Consulting (primarily for non-commercial, single family homes)




Site Planning Design Services
Current Services
Services are listed below but please ask us if there is something else you are looking for, if we can't do it, we know the right company who can!
Due Diligence Process






Representation / Construction-Ready Services
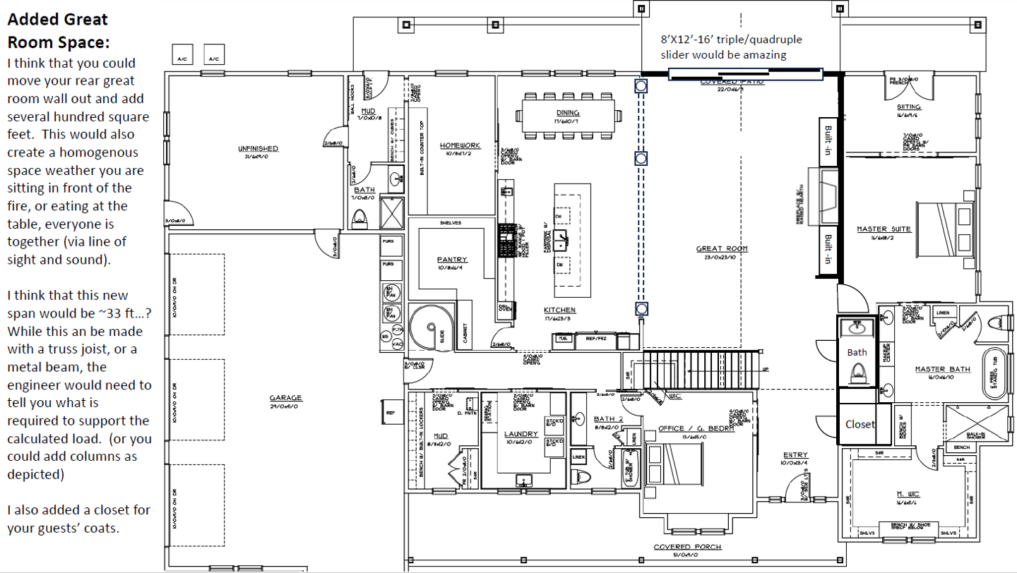
Architectural Design Consulting Services
Permitting Process Management


DIY Land Development Checklist
Pricing
Simple Site Plan
This option is ideal for straightforward projects where the client already knows exactly what they want on their Site Plan and simply needs it professionally drafted.
Standard drawings are 30" × ~42", ensuring plenty of space to capture all essential details. It’s a great fit for clients who want the core elements documented but still prefer the flexibility to sketch, modify, or refine the plan on their own.
The final product is delivered as a PDF file.
$500
While no two projects are the same, this will help you set realistic expectations for project costs.
Fixed plan services and hourly rates are fixed prices.
Projects are started with a retainer, and ICD hours and expenses are applied against the total. If the project does not use the total amount, the remainder is returned to the client. If the project requires additional resources beyond the retainer, ICD will provide an estimate to the client for agreement and payment before any additional work is performed.
Site Plan Project
This project provides a complete suite of site planning services—including a Preliminary Site Plan, a Permitting Site Plan, and a Comprehensive Site Plan—designed to guide the landowner or builder from concept to construction and beyond.
It includes the following:
Collaborative Consultations
Multiple check-ins throughout the process to understand the purpose of the project, refine goals, and work together on the development of all plans.
Initial Due Diligence
Basic research on the parcel and surrounding properties to understand historical use, potential constraints, and any early considerations a landowner should be aware of before planning begins. If issues arise—such as signs of environmental contamination or potential boundary concerns—ICD will recommend further investigation or surveying using the existing title report as a starting point.
Note: For maximum certainty, ICD recommends having the property surveyed and recorded. ICD can coordinate this as a separate service at the client’s request.
Preliminary Site Plan
A scaled drawing showing parcel boundaries and known encumbrances, giving the landowner or builder a clear picture of where development can occur.
This plan is based on the current title report and publicly available data.
If the client does not yet have these documents, ICD will advise on what additional information is needed to protect their interests.
Permitting Site Plan
A plan prepared for formal submittal during the permitting process, structured to meet agency expectations and help streamline review.
Comprehensive Site Plan
A full, integrated plan that combines all previous work and incorporates the layout, design decisions, and project vision developed with the client.
This document helps landowners and builders coordinate efficiently with contractors and can reduce costs over the life of the project.
Deliverables
All plans are delivered as PDFs, typically formatted at 30" × ~42".
ICD can assist with printing if physical copies are needed.
Any reports generated during the project will also be provided as PDFs.
What’s Not Included
ICD will clearly explain any additional services or costs not included in this package—such as surveying, environmental assessments, or title research—during the initial consultation, or as they are needed throughout the project.
$2,500
Custom Project
Sometimes a landowner or builder needs a clearly defined, fixed-scope service that can drop straight into a construction budget as a line item.
Reach out and let ICD know what you’re looking for—we’ll tailor a solution that fits your project and supports your goals.
$TBD
Parcel Drawing
$250
This option is ideal for clients who only need the parcel drawn to scale, along with any known easements or encumbrances they provide.
It offers a clean, accurate base map that gives them the freedom to complete their own planning and layout.
If they later decide to have their final design professionally drafted, they can simply pay the remaining $250 to upgrade to the Simple Site Plan package.
The final product is delivered as a PDF file.
Preconstruction Management Project
This project is designed for homeowners and builders who want a dedicated professional to manage every aspect of pre-construction and prepare the project for a seamless start to building.
It includes, but is not limited to:
Everything in the Site Plan Project
All services and deliverables are included in the standard Site Plan package. Additionally, ICD will help during the land purchase process to ensure the parcel will support the needs of the project.
Regular Project Updates (usually weekly)
Consistent communication with the landowner or client so they always know the status, next steps, and any decisions that need attention.
Permitting & Entitlement Management
Full coordination with all relevant agencies, including:
Health District
Highway District
Fire District
County/City Building Department
And any other required permitting authorities
Builder Selection Support
If a builder has not yet been chosen, ICD can assist the landowner in identifying the right builder for the project.
Oversight of Pre-Construction Professionals
Direct coordination and consultation with the key experts involved in early-stage project development, such as:
Surveyors
Engineers
Excavation Companies
Utility Providers
Other specialty contractors as needed
Builder Coordination
Ongoing communication with the selected builder to ensure all pre-construction activities align with their process, helping the project transition smoothly into construction.
$5,000
$100
Hourly Rate
This option is a universal tool for all of the "other projects" which might not fit cleanly in the other projects/plans, and for clients who aren’t yet sure what they need but want a knowledgeable professional to guide them through the process. This price also gives you access to engineering and legal opinions through services that ICD retains.
Common ways ICD supports clients in this category include:
Professional Second Opinions
Assisting landowners with expert guidance and advice throughout their entire project—helping them make informed, confident decisions.
Planning Support During Land Purchases
Working with realtors and landowners to provide generalized planning insight and due diligence during the property-buying process.
Parcel Feasibility & Due Diligence
Helping landowners or prospective buyers assess whether a parcel can support their intended plans through deliberate, focused due diligence.
Permitting Assistance & Regulatory Navigation
Supporting landowners and builders with permitting needs—engaging regulatory agencies, identifying requirements, and helping secure amendments or waivers when appropriate.
Architectural Review & Recommendations
Providing functional, efficiency-focused input on architectural concepts. ICD blends pragmatic design with the client’s desired aesthetics to help create a more thoughtful, refined final plan.
Additional / Future Services
Additional services which can be negotiated, or services which will be offered in the near future.


Earthwork - Initial Site Clearing and Grading
ICD can provide limited earthwork services or facilitate subcontractors who can provide a full range of earthwork services.


Full CAD Design Support
In 2026 ICD plans to expand its design capabilities with the use of Chief Architect design software. ICD will be able to design traditional stick-frame structures and post-frame shops/barndominiums
Companies ICD works with:



















